艾尚家時尚主題餐廳裝修工程
| 項目名稱 | 艾尚家時尚主題餐廳裝修工程 | 行業(yè)屬性 | 酒店/餐飲/會所 |
| 項目地址 | 北京市海淀區(qū)清河三街95號同源大廈 | 項目造價 | 26.1萬 |
| 主關鍵詞 |
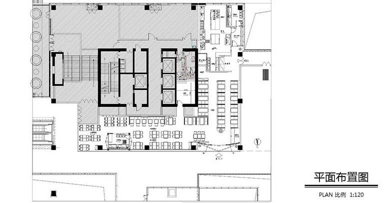
▄原建筑結構分析: 本案在設計過程中注重材料質感變化與對比采用了比較多的天然材質,不同于傳統(tǒng)料理店風格,而是融入了更多時尚的設計元素,整體色調以白色為主,力求營造出清新自然的另類時尚空間。
▄設計需求: 設計師在設計過程中注重材料質感變化與對比采用了比較多的天然材質,融入了更多時尚的設計元素,整體色調以白色為主,力求營造出清新自然的另類時尚空間。
▄設計風格定位: 桑拿板把惡色油漆的質感與光滑的鏡面玻璃相對比,真皮軟包的墻面與吧凳、黑色烤漆玻璃與鏡面的運用,這些材料的使用讓空間更具質感。局部馬賽克拼圖使得空間更顯精致細膩。采用多種照明方式,用燈光點綴空間、烘托氣氛。整體的設計色調讓不大的空間顯得干凈、明亮、別致而有張力,內斂且不拘一格。


北京鑄誠大廈辦公裝修工程
北京銀河SOHO辦公裝修工程
301醫(yī)院裝修工程
