合肥新安房產網辦公裝修工程
| 項目名稱 | 合肥新安房產網辦公裝修工程 | 行業屬性 | 金融/國企/事業機構 |
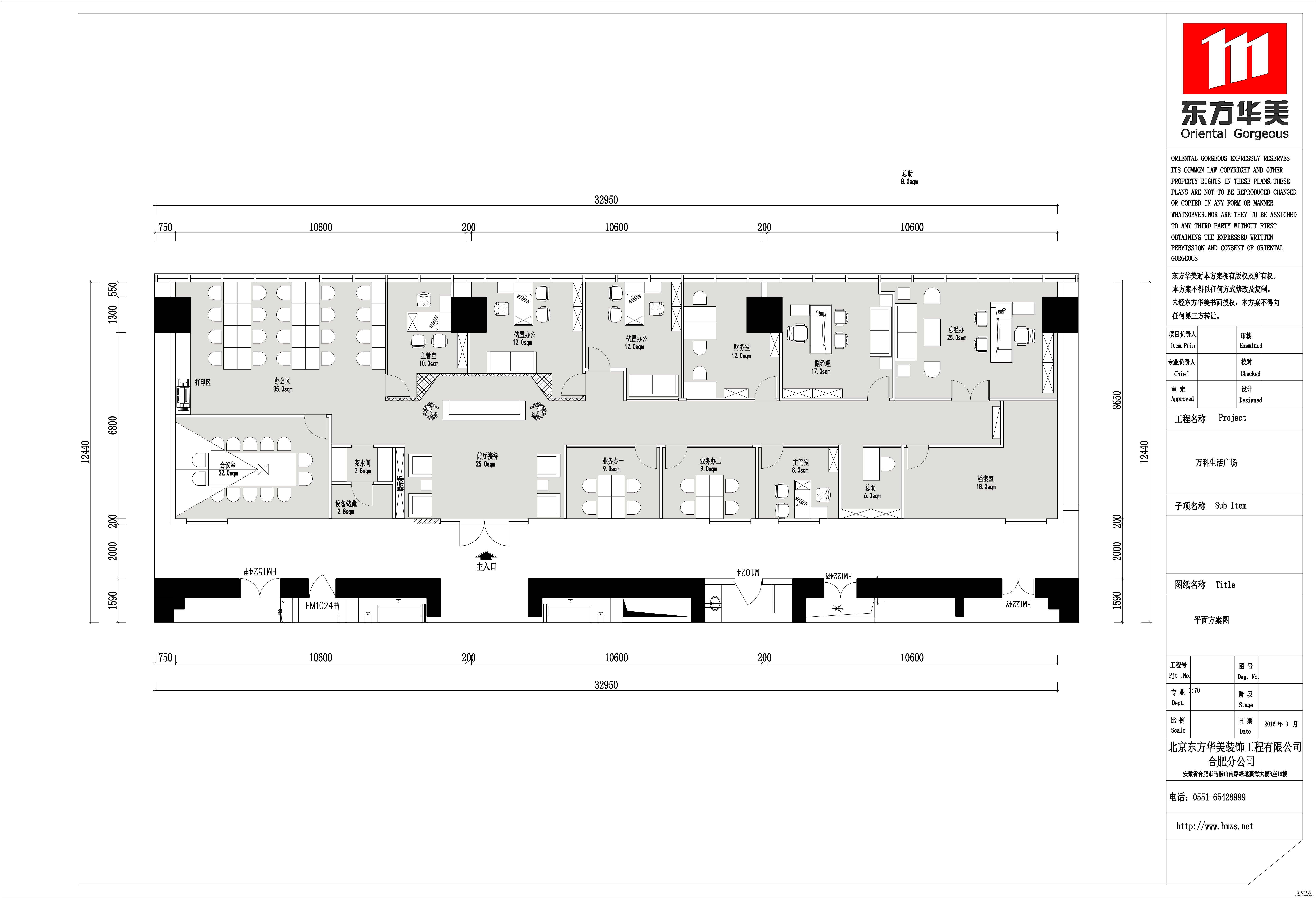
| 項目地址 | 合肥市蜀山區尚澤大都會A座 | 項目造價 | 54.7萬 |
| 主關鍵詞 |
▄原建筑結構分析: 新安房產網作為安徽地產第一互動網媒,新安房產網始終走在樓市最前沿,已成為百姓買賣房屋的"身邊專家",是一家以房地產資訊及營銷服務為主要業務的行業網絡服務供應商,是安徽省規模最大、專業性最強的房地產門戶網站之一。
▄設計需求: 該方案為一個房產網公司,甲方比較傾向于簡單現代的辦公空間,很傳統的裝修風格。因此設計師整體裝修體現現代的建筑風格,設計師的設計方案簡潔明了,時尚大方,綜合運用了LOFT和現代的元素合并在了一起,打造了一個簡約、嚴謹、時尚、辦公的整體辦公空間。
▄設計風格定位: 強調功能性設計,吊頂造型簡約流暢,色彩對比強烈。大廳墻面大量使用橙紅色,給人帶來前衛、有活力的感覺。 幾幅歷史性掛畫的點綴,顯得此公司有濃濃的文化韻味。 開放性辦公室區域頂面使黑色油漆,墻面大量使用色彩豐富的掛畫,綠植和橘色方柱的融入給整體增添了時尚感。


北京鑄誠大廈辦公裝修工程
北京銀河SOHO辦公裝修工程
301醫院裝修工程
